Il prodotto è stato ideato espressamente per la gestione ed il controllo di idropulitrici dotate di caldaia per il riscaldamento dell’ acqua calda.
La principale funzione, denominata TOTALSTOP, gestisce lo spegnimento del motore pompa, con una tempistica standard fissata a 12 secondi.
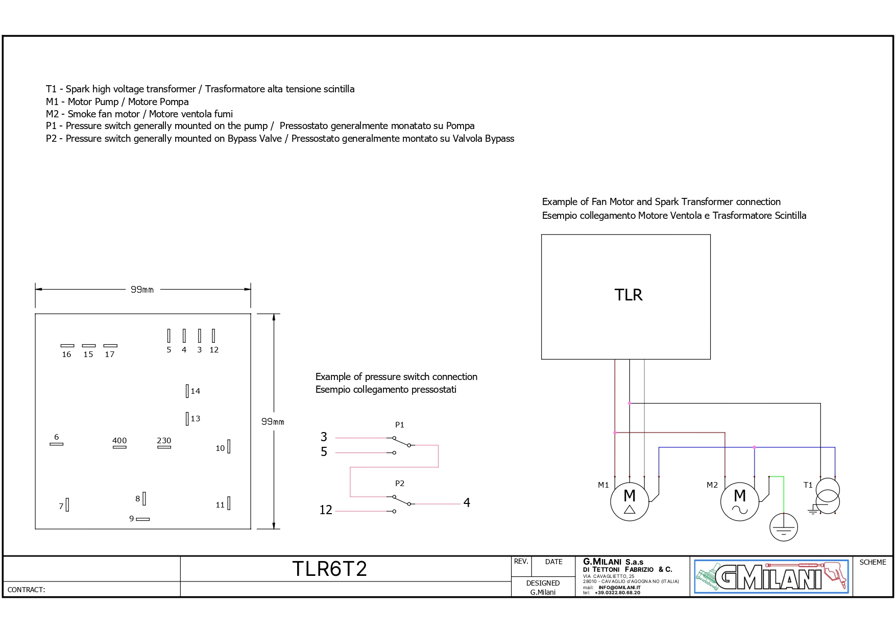
L’apparecchiatura è dotata di un’uscita a 24Vac, ritardata di 3 secondi per comandare l’elettrovalvola gasolio e un’uscita ausiliaria a 24Vac per una spia di segnalazione con assorbimento max 150mA.
Inoltre è possibile collegare un interruttore in bassa tensione per spegnere completamente la parte elettronica della scheda, lasciando attiva l’uscita ausiliaria (24Vac).
Caratteristiche operative:
Il TLR6 T2 è dotato di 4 ingressi pressostati che permettono anche la funzione di sicurezza sul controllo; mancanza acqua che disattivata immediatamente l’elettrovalvola gasolio.
Uscita motore pompa comandata internamente da 3 Relais.
Scheda elettronica affogata in resina epossidica per eliminare il problema della polvere e umidità