Caratteristiche prodotto:

  • Alimentazione 230Vac / 400Vac  50/60Hz
  • Per motori trifase fino a 5,5Kw – 7,5Hp
  • Per motori monofase fino a 4Kw – 5,4Hp
  • Comando EV gasolio contatti NO puliti
  • On-Off generale in bassa tensione
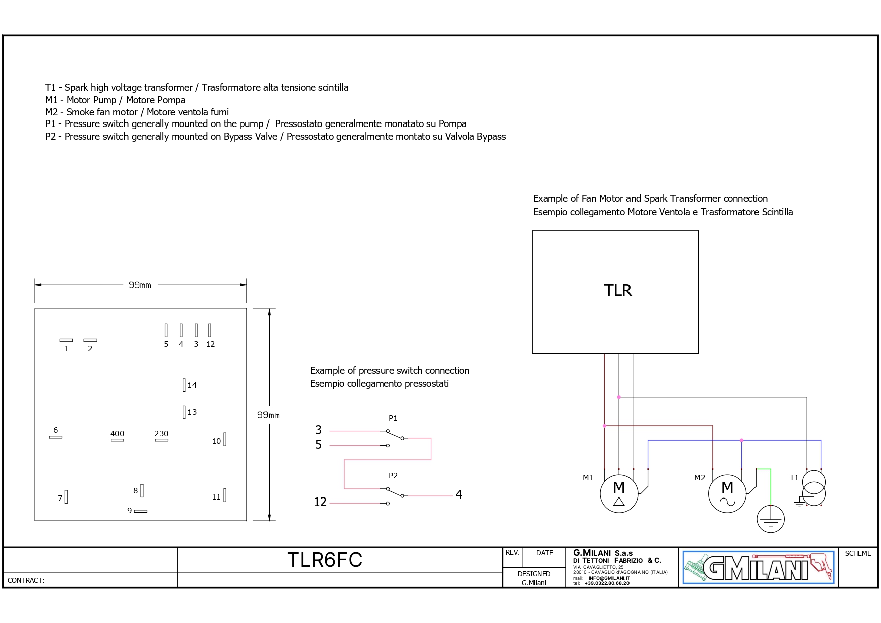
  • Pressostati in bassa tensione
  • Connessioni tramite faston 6,3mm
  • Misure ingombro: (L x L x H) 99 x 99 x 48mm
  • Peso: 750g
Scarica contenuto in PDF
Download content PDF in English

Il prodotto è stato ideato espressamente per la gestione ed il controllo di idropulitrici dotate di caldaia per il riscaldamento dell’ acqua calda.
La principale funzione, denominata TOTALSTOP, gestisce lo spegnimento del motore pompa, con una tempistica standard fissata a 12 secondi.
L’apparecchiatura è dotata al suo interno di un relais con contatti puliti NO, usato generalmente per l’accensione ritardata di 3 secondi dell’elettrovalvola gasolio.
Inoltre è possibile collegare un interruttore in bassa tensione per spegnere completamente la parte elettronica della scheda.
Il TLR6FC è dotato di 4 ingressi pressostati che permettono anche la funzione di sicurezza sul controllo; mancanza acqua che disattivata immediatamente l’elettrovalvola gasolio.

Caratteristiche operative:
Uscita motore pompa comandata internamente da 3 Relais.
Scheda elettronica affogata in resina epossidica per eliminare il problema della polvere e umidità.